

Canadian shipping company the CSL Group has entered into a 21-year strategic partnership with Australia-based BCI Minerals for the construction and operation of a modern transhipment vessel to support the Mardie Salt and Potash Project in Western Australia. As part of CSL’s comprehensive transhipment solution, the custom-designed transhipper will handle 5.35 million tonnes of salt and 140,000 tonnes of sulfate of potash per year.
Loading will take place at BCI’s jetty loadout facility in Cape Preston, Western Australia. The vessel will then navigate 12 to 15 nautical miles to transfer the cargo to oceangoing ships from Handysize to Newcastle Max.
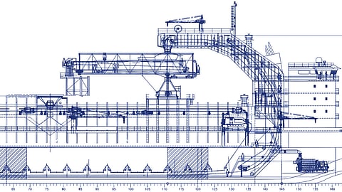
The 16,000DWT vessel will have a shallow draught to maximise cargo lift within tide and channel constraints. A double-ended, diesel-electric propulsion system of four azimuthing drives will meanwhile provide enhanced manoeuvrability. Loading and unloading can be done at rates of 3,300 tonnes per hour and 4,000 tonnes per hour, respectively.
Construction of the new vessel will begin in the spring of 2026 with delivery scheduled for the middle of 2027. In the interim, beginning in the second half of 2026, CSL will provide a vessel on time charter to deliver transhipment services to the Mardie Project while the new dedicated vessel is under construction.