gmsendurance 
Equipment

Gulf Marine Services expands its scope

Baird Maritime

Abu Dhabi-based Gulf Marine Services (GMS) is the largest operator of self-propelled accommodation jack-up barges in the Middle East. GMS operates its fleet of barges on long-term contracts, maintaining their clients' oil-producing infrastructure offshore the United Arab Emirates and Qatar.

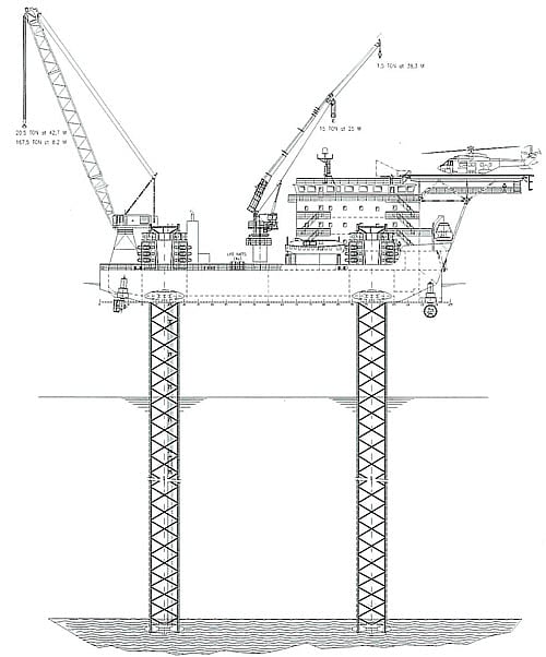
Last year's ADIPEC event in Abu Dhabi and Work Boat Gulf 2009, currently underway in Bharain, provided GMS with the opportunity to present the latest additions to its fleet of self-propelled, jack-up barges, the next generation "Gusto" designs 'GMS Endurance' and 'GMS Endeavour'. These new units will be delivered in the second and third quarters of 2010 respectively, and feature DP2 dynamic positioning, an operating water depth of 65 metres, accommodation for 151 people, a crane capacity of 167 tonnes and compliance with the latest international regulations formobile offshore units (SNAME and MODU).

'GMS Endurance'

The construction of these vessels will take place at GMS's own facility in Mussaffah, Abu Dhabi. The engineering and construction team at the yard has already built five similar units. Facilities and equipment at the yard include a quay space of 120 metres with a six-metre water depth along side, a secure yard space of 22,800 square metres, concrete fabrication area of 6,600 square metres, warehouse space of 1,420 square metres, and gantry and mobile cranes.

The GMS facility has also attracted the interest of third parties seeking flexible and high-quality service. Recent contracts include dive support, construction barges and seismic survey vessels for international clients working in the region. Ongoing projectsin 2009 include the construction and installation of offshore accommodation and power generation modules.